The Dulwich Team

020 3397 1144

The Honor Oak Team

020 3397 1166

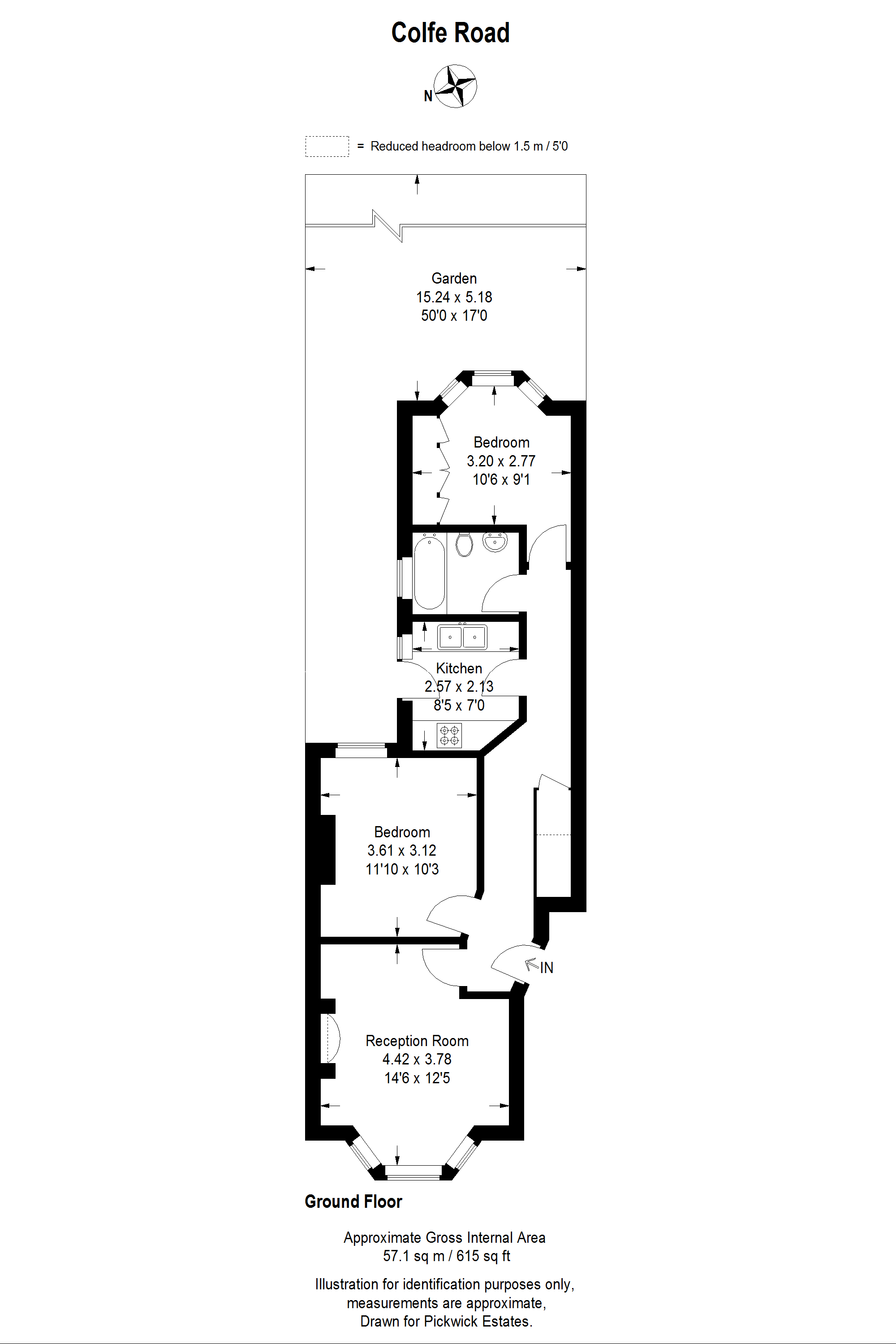
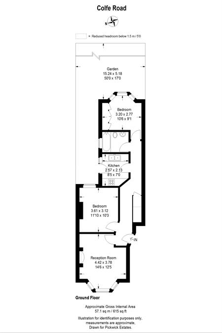
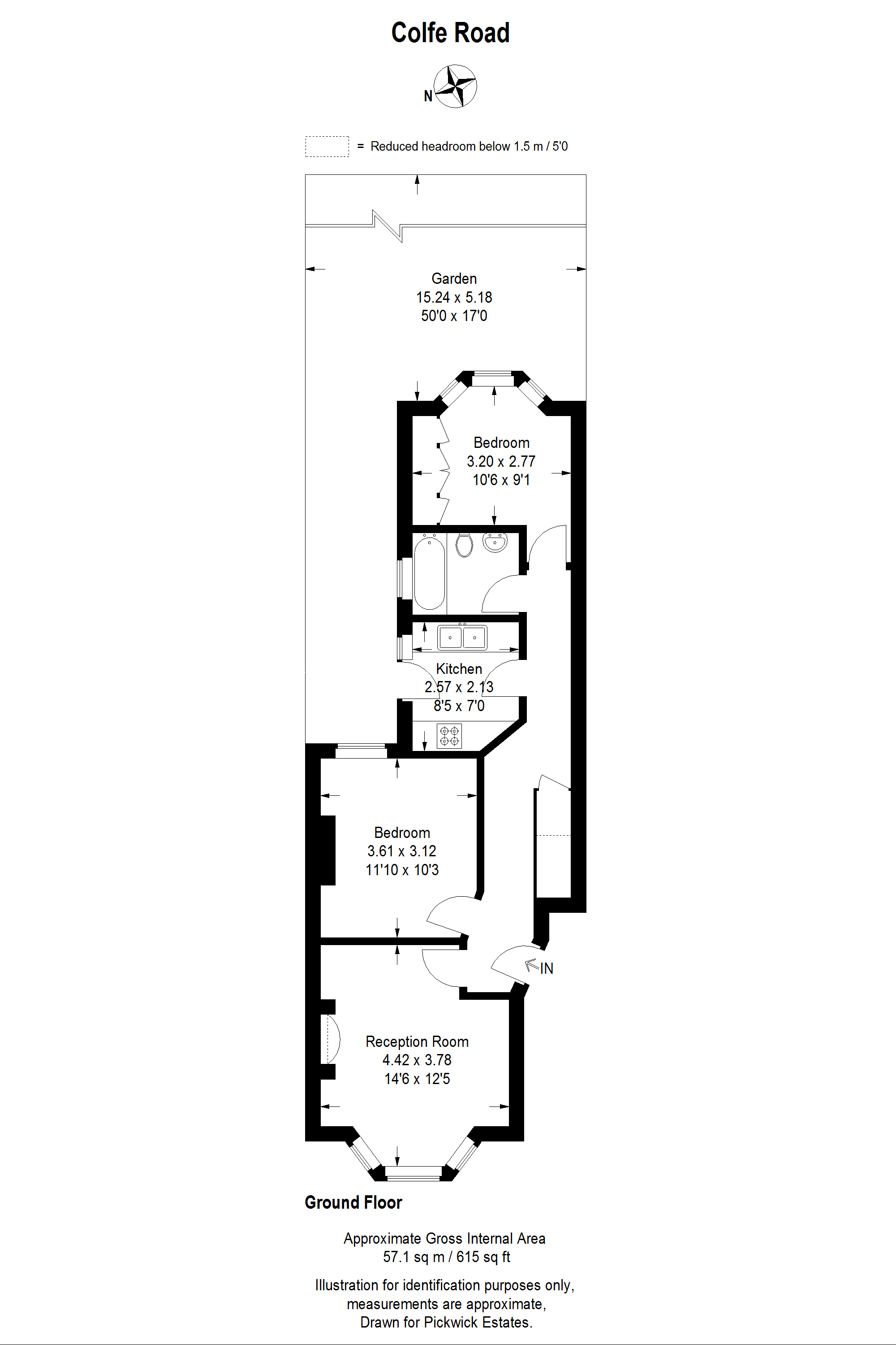
Colfe Road , SE23
2 Bedroom Flat
(Under Offer)


£450,000
KEY FEATURES
2 Bedroom(s)
1 Bathrooms
  • Charming 2 double bedroom garden flat
  • SHARE OF FREEHOLD
  • CHAIN FREE
  • Private rear garden
  • Nice front reception room with a double glazed sash bay window
  • Kitchen with access to the garden
  • Bathroom
  • In need of modernisation
  • Close to Forest Hill station and local amenities of the high street
  • Close to open green spaces and a good selection of highly rated schools
PROPERTY DESCRIPTION

Charming ground floor garden flat located on Colfe Road, in the heart of Forest Hill. Offered to the market with a SHARE OF FREEHOLD and CHAIN FREE.

The property features a well-maintained private rear garden and offers two double bedrooms. Internally the flat requires some updating.

This beautiful Victorian period conversion offers a wonderful blend of classic elegance and modern convenience.

Upon entering, you are greeted by a well-proportioned front reception room with a characterful exposed brick chimney and a large bay double glazed sash style window that provides plenty of natural light.

Adjacent is a good size double bedroom with high ceilings and a sash window that looks out ot the side return.

The hallway leads to a kitchen and bathroom, both of which are functioning but require updating. The kitchen has a door to the side return offering direct access to the garden.

The other bedroom is at the rear of the property, featuring built in wardrobes and lovely views over the rear garden through a large bay window.

The highlight of this property is the beautifully well-maintained private rear garden, providing a tranquil oasis perfect for relaxation and outdoor entertaining.

While the interior requires some updating, this presents an exciting chance to personalize the space to your tastes and preferences. The property benefits from double glazing at the front of the property, ensuring a peaceful and quiet living environment.

Conveniently located close to Forest Hill station and a plethora of local amenities, this residence is ideal for those seeking a well-connected and vibrant lifestyle.

The station is approximately 0.4 miles away (around 8 minutes on foot), offering regular services to London Bridge and Victoria, as well as Overground connections to Canada Water, Shoreditch, Hoxton, Dalston Junction, and Highbury & Islington.

Central Forest Hill has plenty to offer, including St David’s café, excellent comedy nights at The Signal, great food at The Sylvan Post, and several popular pizza restaurants. You’ll also find a Sainsbury’s, Post Office, WHSmith, Boots, delicatessens, and a modern swimming pool and leisure centre.

Nearby attractions include the Horniman Museum and Gardens, which hosts regular farmers’ markets, summer events, and a butterfly sanctuary. Honor Oak Park, Blythe Hill Fields, and Sydenham Woods are also within walking distance.

The immediate proximity to esteemed schools such as Kilmorie Primary School (0.22 miles), Dalmain School (0.2miles), and Perrymount Primary School (0.29 miles) makes it an ideal choice for families.

With its desirable location and array of amenities, this charming ground floor garden flat presents an exceptional opportunity to embrace a prosperous and vibrant lifestyle in the heart of Forest Hill.