The Dulwich Team

020 3397 1144

The Honor Oak Team

020 3397 1166

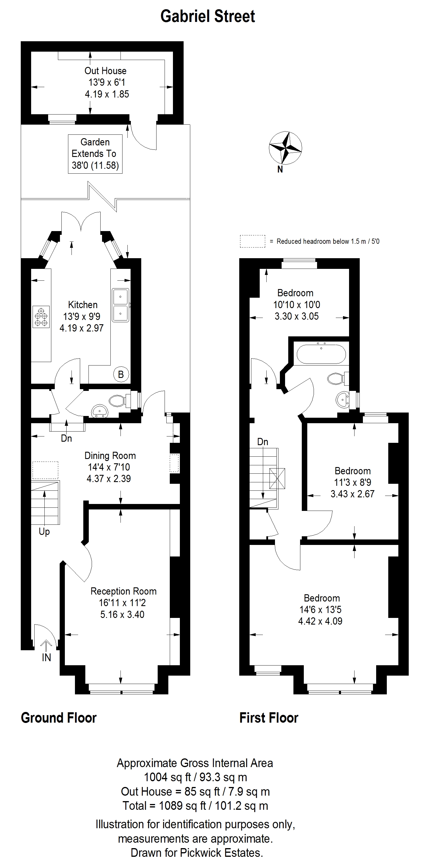
Gabriel Street , SE23
3 Bedroom House
(Sold)


£750,000 (OIEO)
KEY FEATURES
3 Bedroom(s)
1 Bathrooms
  • 3 bedroom, mid terrace, red brick Victorian family home
  • SOUTH facing private rear garden with a large studio shed
  • Reception room
  • Dining room
  • Kitchen offering direct access to the garden
  • Downstairs guest toilet
  • Family bathroom
  • Period features and plenty of charachter
  • Close to Honor Oak park station (London Bridge and Overground connections)
  • Close to amenities, open green spaces and a selection of excellent schools.
PROPERTY DESCRIPTION

LAUCHING SATURDAY 18TH DECEMBER. A charming three double bedroom, mid terrace Victorian family home with a SOUTH facing garden, located on this quiet residential street a short walk from Honor Oak Park station.

The house has an imposing red brick façade set back from the street by a small hedged front garden.

The ground floor has two reception rooms, a lounge at the front of the house and a dining room at the back, both are light and airy and have wooden floorboards. There is also a downstairs guest toilet between the dining room and the kitchen.

The front lounge has high ceilings with cornicing, an attractive fireplace with marble surround, fitted cupboards and shelving in the alcoves and a large square bay sash window that fills the room with natural light.

The reception/dining room at the back leads through to the Kitchen which has been sympathetically modernised with a contemporary finish. There are plenty of base and wall mounted units with wooden worktops above housing the gas hob, sink and oven with extractor above. French doors at the back lead out to the lovely SOUTH facing rear garden.

The garden has a decked patio area closest to the house that extends out into the garden up to a well-kept lawn, beyond this is a large studio/shed with electricity at the back.

Upstairs are three double bedrooms. Occupying the whole width at the front of the house is the main bedroom which has wood effect flooring, 3 large sash windows an original feature fireplace. The second bedroom is adjacent and faces the rear of the house, it has original painted floorboards and has an original feature fireplace. The smallest bedroom is at the rear of the house and has lovely views over the garden.


The family bathroom is located in the middle of the property. The bath is tiled with shower above, accompanied by a toilet and wash hand basin. A frosted sash window provides natural light and ventilation.

The house does require modernisation but it offers plenty of potential, the loft can be converted and the side return can be extended (subject to planning).

Gabriel Street is approximately 5 mins walk to Honor Oak Park station where there are regular services to London Bridge (around 15mins) as well as London Overground services to Shoreditch and Highbury and Islington. The trendy high street boasts a range of independent shops, cafes, bars, a deli and several highly-recommended restaurants. Nearby green leafy open spaces can be found at Blythe Hill Fields, One Tree Hill and Horniman gardens all offering fantastic views of the London Skyline. There is also a good selection of highly rated primary schools nearby including Stillness School and Dalmain School..