The Dulwich Team

020 3397 1144

The Honor Oak Team

020 3397 1166

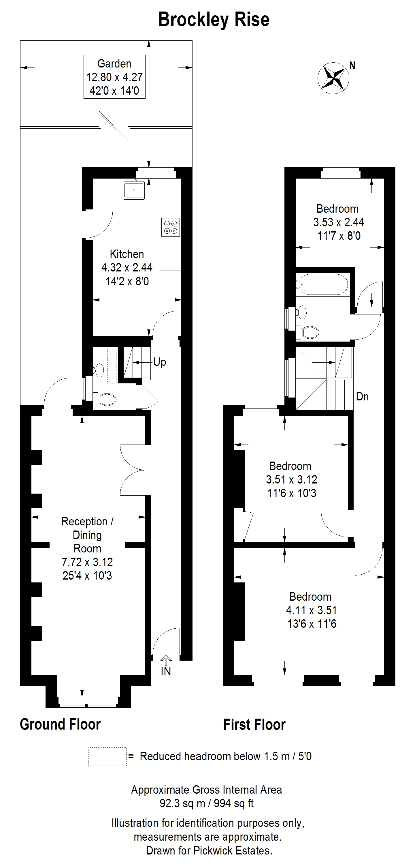
Brockley Rise, SE23
3 Bedroom House
(Sold)


£775,000
KEY FEATURES
3 Bedroom(s)
1 Bathrooms
  • Nicely presented 3 bedroom Victorian family home
  • Double reception room with exposed wood flooring
  • Westerly facing rear garden and front garden
  • Stylish kitchen
  • Downstairs toilet
  • Nicely decorated family bathroom
  • Plenty of character and period features
  • Opposite Stillness Primary School
  • Close to Honor Oak park station (London Bridge/Overground) and City links to Crofton Park station
  • Close to amenities on Honor Oak Park, Brockley Rise and open green spaces like Blythe Hill Fields
PROPERTY DESCRIPTION

Offering an abundance of character and charm is this lovely, mid terrace, 3-bedroom Victorian family home with a Westerly facing private rear garden.

The house is in a prime location with plenty of amenities on its doorstep, including Stillness Primary School on the opposite side of the street and a choice of Stations between Honor Oak Park and Crofton Park.

The house has great curb appeal as it is offset from the street by a neat front garden with a hedge and pathway leading to the front door.

The house boasts a typical handsome Victorian façade with exposed bricks and a square bay sash window on the ground floor with period detailing above the front door and sash windows.

Through the original front door which features nice stain glass is the hallway that has original exposed wood flooring that spreads seamlessly through to the reception room. There is also a handy guest toilet at the end of the hall located under the stairs.

The ground floor offers well laid out accommodation with a large double reception room at the front with stripped wooden floors, high ceilings with cornicing, a sash square bay window with boxed seating with storage beneath and two exposed fireplaces in the chimney breasts. At the far end of the room is a patio door that leads out to the side return and garden.

The kitchen has plenty of base level units with shelving above, finished with a solid wooden worktop and an integrated oven, hob and extractor fan. The sink sits neatly under a window that looks out to the garden. A patio door to the side leads out to the sunny Westerly facing rear garden.

The garden is separated into a decked patio area followed by a lawn that is surrounded by mature shrubs and plants on the borders. A central paved path leads to the bottom of the garden where there is a summer house/shed for storage.

Upstairs is a large master bedroom at the front of the house which spans the full width of the property. The floors are carpeted, there is a cast iron feature fireplace two large sash windows that offer plenty of natural light.

The second bedroom is another a good size double and also has carpeted floors, a fitted cupboard a one of the alcoves of the chimney breast an original cast iron feature fireplace and a sash window looking out to the rear of the house.

Bedroom three is at the back of the house, the smaller of the three rooms this makes a great nursery, study or kids bedroom.

The family bathroom has been stylishly updated, clad in fashionable white metro tiles on the walls. There is a bath with shower above, a contemporary wash hand basin and a toilet and frosted window offers natural light and ventilation.

This house is perfect for a young family as the highly rated Stillness primary school is right opposite, it will be just as suitable for a professional couple as the house is conveniently located close to Honor Oak station (Overground and London bridge connections) and links to the city via Crofton Park (Blackfriars). There is also an array of local amenities close by on Honor Oak and Brockley Rise with Blythe Hill Park a short stroll away.